兆豐廣場 精裝修房源出租 拎包入駐

分享
5.19 萬元/月
  • 單價:6.2元/㎡/天
  • 物業費:22.0元/㎡/月
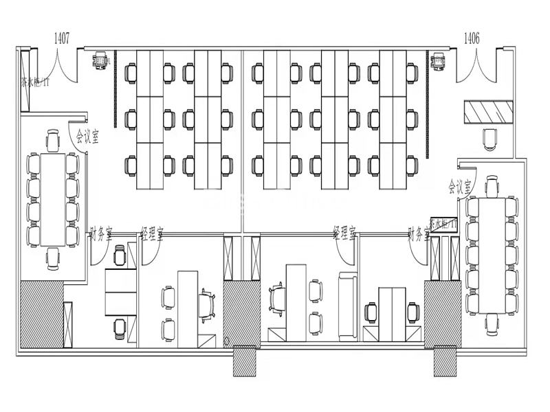
275㎡
建築麵積
20
容納工位
帶裝修家具
裝修
  • 長 寧-中山公園
  • 2號線-中山公園、3號線-中山公園、4號線-中山公園
  • 兆豐廣場

房源專屬顧問為您服務

江帥軍Evan

13052215001
預約看房

公共交通

Public transit

兆豐廣場

長 寧中山公園長寧路1027號