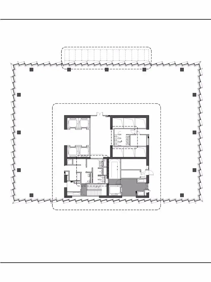
陸家嘴金控廣場500平標準交付正對電梯口

分享
12.62 萬元/月
  • 單價:8.3元/㎡/天
  • 物業費:32.0元/㎡/月
500㎡
建築麵積
30-50人
容納工位
標準交房
裝修
  • 浦 東-世紀大道
  • 4號線-浦電路、6號線-浦電路
  • 陸家嘴金控廣場

房源專屬顧問為您服務

陳水天Felix

18616199007
預約看房

公共交通

Public transit

陸家嘴金控廣場

浦 東世紀大道世紀大道1788號